您当前位置:

首页 > 产品中心 > 产品分类二

十月百度热搜 @外滩瑞府官方售楼处电话:顶奢生活之选!

发布时间:2025-11-10 浏览次数:

  外滩1公里,外滩瑞府二批次今日加推建面约-123㎡3-4房,均价148300元/㎡!

  的总价,外滩瑞府售楼处电话:为买家打开了进驻顶豪圈的“稀缺窗口”。无需承担过高门槛,即可与外滩共享城市核心资源、共赴长期价值增长,这样的机会,错过难再寻,195/240㎡只有这批次。外滩瑞府售楼处电话:最新一房一价分析如下:

  当下上海内环,看似豪宅琳琅满目,但纵观市场起伏,真正能穿越周期的,唯有“公认豪宅圈”的核心资产。外滩瑞府售楼处电话:

  是其中更具全国号召力的“价值标杆”。此前,金陵华庭以套均约8200万实现“日光”,这份热度的背后是来自全国高净值人群的集体认可:

  外滩不仅是上海地理意义上的城市核心,更是全国财富圈层心中默认的“资产安全区”与“身份符号”。外滩瑞府售楼处电话:

  意味,项目从根源上享受外滩独有“全国级价值基因”,这是非核心板块楼盘难以企及的“硬底气”。

  外滩瑞府售楼处电话:选择外滩,另一原因是其全球级商业文化底蕴与“上海名片”价值。这份吸引力,有数据为证:据上海发布统计,截至10月4日,今年十一假期超220万人次游客涌向外滩,这里始终是上海必游地标。外滩瑞府售楼处电话:

  外滩的风景是下楼散步的背景,这里的繁华是骑行途中的寻常。选择这里,就是把全球级资源,私享成生活配套。外滩瑞府售楼处电话:

  外滩瑞府售楼处电话:更关键的是,外滩瑞府对望上海“世界级黄金三角”——外滩(世界级滨水区、全球会客厅)、陆家嘴(国际金融中心)、外滩瑞府售楼处电话:北外滩(世界级会客厅),三者均为世界级定位,是上海作为全球城市的核心动力源。在3000-3500万级市场,论地段价值,外滩瑞府独领风骚,无出其右。外滩瑞府售楼处电线、买外滩,买的是上海顶阶的城市更新红利

  外滩瑞府售楼处电话:据最新阶段性方案(非终版,过程示意图,以实际交付为准),这里将打造红砖艺术长廊、迎宾树阵、文化景墙、全龄及宠物友好花园,外滩瑞府售楼处电话:融合漫步、社交、休闲功能。未来业主下楼即享慢时光,这里更有望成为媲美徐汇滨江、受全城Citywalk爱好者追捧的滨水地标。外滩瑞府售楼处电话:

  在城市更新过程中,一条亿级TOP圈层也在成型。不同于其他新房仅能成为板块内的价格高点,外滩瑞府从起点就站在了这条亿级圈层脉络上,这份先天优势,是同价位项目难以企及的。外滩瑞府售楼处电线、买外滩,买的是“收藏”的稀缺资产

  外滩瑞府售楼处电话:外滩的珍贵,更藏在其不可复制的稀缺性里——自2010年至今,外滩1公里核心圈内仅供应1889套新房,占全市新房总量比例低至约0.15%。

  如此稀少的供应,让外滩资产早已超越“居住”属性,更添“收藏”价值;选择这里,本质是拥有一份可传承的外滩臻稀资产。外滩瑞府售楼处电话:

  外滩瑞府售楼处电线万级总价是当前能跻身外滩核心圈的稀缺窗口。这样的门槛,在全面高净值化的外滩板块中,或难再出现——错过此刻,大概率就错过了进驻外滩的最后机遇。外滩瑞府售楼处电话:

  不仅依靠稀贵地段,更在于本次加推的240㎡新品,总价3500万级,让“进驻外滩”从“地段占有”升级为“圈层融入”。

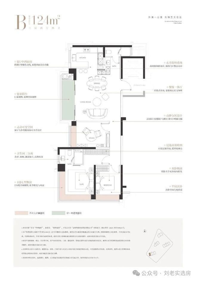
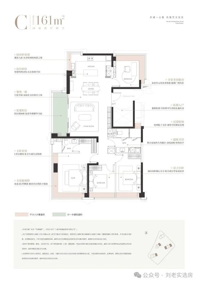
  外滩瑞府售楼处电线㎡产品,全方位覆盖塔尖人群对“居住质感”的严苛要求。不仅凸显户型的稀缺性,更从产品根源上区隔了内环普通刚改项目,奠定了项目的高阶调性。外滩瑞府售楼处电线万级总价,锚定外滩塔尖圈层,填补市场空白

  外滩瑞府售楼处电话:据小编统计,内环非黄浦区域超九成项目主力总价集中在3000万以下,难以匹配塔尖人群的资产配置与圈层需求;而外滩板块内,多数新房面积超350㎡,总价太贵,难寻入场机会。外滩瑞府售楼处电线万级的总价定位,恰好填补这一市场空白:一方面,这个总价段远超内环普通新房总价,筛选出财富实力、生活品味、资源需求同频的塔尖人群;外滩瑞府售楼处电话:另一方面,它避免了外滩板块内“超高总价”的门槛压力,让渴望融入外滩核心圈层的塔尖人士,不必为“非必要面积”承担额外成本,以更合理的总价锁定外滩核心资产。外滩瑞府售楼处电话:

  外滩瑞府售楼处电话:但要注意,本次加推的240㎡户型仅这一批次供应,席位稀缺且再无补仓可能,一旦错过,便意味彻底错失以这一尺度与总价入住外滩核心、融入塔尖圈层的机会。约270°IMAX 厅堂+超级主卧+国际大牌奢装!外滩瑞府售楼处电话:

  我们再看240户型,从专属入户仪式到全景生活场景,从国际奢材甄选到功能细节打磨,这款户型都尽显高奢。外滩瑞府售楼处电线、专属入户礼序:塔尖仪式感从进门开始

  户型预留的灵活 空间,可根据家庭成员需求随时变换功能——书房、琴房,专属化妆室...每一种场景都能精准适配,让空间随生活成长而进化。

  外滩瑞府售楼处电话:南向双套房设计,其中主卧以“小家化”理念打造超大私人空间:就寝区面宽开阔,搭配独立梳妆台,满足日常精致需求;外滩瑞府售楼处电话:L型大衣帽间收纳容量充足,轻松容纳四季衣物;主卫亮点十足,不仅做到南向采光,还配置双台盆、独立马桶、淋浴区与浴缸四件套,堪比五星级酒店的配置。外滩瑞府售楼处电线、配独立家政间:让家庭井然有序

  家政间彻底释放了阳台,让阳台成为观景配套或者志趣空间;且位置在进门处,离两个卫生间很近,“洗烘一体”的动线、细节配置与奢材:国际大牌+高定选材,同级品质天花板

  ✔装修品牌:全系采用国际一线大牌,中西厨配置嘉格纳9件套;博洛尼橱柜搭配定制拉篮与调味架,让厨具收纳井然有序,尽显细节质感。外滩瑞府售楼处电话:

  ✔高定选材:玄关地面选用“白雪公主”玉石,质感温润高级;地面延展祥云灰水墨岩,与外滩华尔道夫酒店同源材质,外滩瑞府售楼处电话:瞬间提升空间格调;主卧背景墙更以威尼斯安缦酒店同款树瘤木,搭配巴黎宝格丽酒店同源羊皮纸,将全球顶奢酒店的居住质感搬进家中,每一处选材都彰显塔尖人居的高奢基因。外滩瑞府售楼处电话:

  作为华润置地上海的顶级标杆作品,外滩瑞府售楼处电话:它从根源上为居者赋予顶豪级的公区质感、审美格调与仪式感。要知道,公区不同于室内装修,后期难再耗费成本升级,华润置地直接以“顶配标准”打造,牢牢奠定了高端生活的基石。外滩瑞府售楼处电话:

  这份打造顶豪的底气,从其集结的顶级设计天团可见一斑:GOA大象设计、渡边智昭、泰国TROP事务所、无间设计吴滨、李益中等行业顶尖力量,共同为外滩瑞府的高端基因保驾护航。外滩瑞府售楼处电话:

  外滩瑞府售楼处电话:其中,汤臣一品御用设计师渡边智昭操刀的泛会所尤为亮眼。他突破传统局限,不仅打造了独立“室内外双幕水剧场”,外滩瑞府售楼处电话:更创新地将高阶社交功能分散于四栋塔楼之下,规划出温莎廊吧、公啡花房、子恺乐园与Gym CLUB四大主题泛会所,满足不同人群的社交与生活需求。外滩瑞府售楼处电话:

  外滩瑞府售楼处电话:社区景观同样是艺术杰作,外滩瑞府特邀国际景观大师Pok Kobkongsanti打造,大师将对印象派光影的理解,化作可步入、外滩瑞府售楼处电话:可触摸的“印象派自然秘境”。六大主题花园错落分布,全域风雨连廊串联四季景致,让居者在繁华都市中,也能享受惬意。外滩瑞府售楼处电话:

  这是一栋三层的自建房,从平地起,到完工入伙,一共用了近二年时间,当然也花费了近200万元,如今终于可以住进去了!

  房子占地约120平方米,外观设计以现代风格为定位,入户大门位于正中间,客厅和餐厅分别位于两侧,同时在大门前方做门楼,而且是两层中空的门楼,让外观更显气势!

  从铝合金窗可以看出,客厅也是一个两层中空的设计,因为入户大门右侧是一个连通一楼和二楼的大窗户,虽然左侧不是连通的窗户,但是通过把窗户的顶和底对齐,再装上窗套线,也能做到左右对称。

  房子的外观都做了淡黄色的外墙漆,通过2厘米的缝隙把外墙漆分隔成尺寸相等的高度,让整体看上去更有层次感。

  全屋的铝合金门窗选用了深灰色,搭配淡黄色的外墙漆,整体效果简约而大方,男子一家都非常喜欢。

  从照片可以看出来,全屋窗户的尺寸都做得较大,而且三楼的窗户都做了固定的大玻璃,这样做的好处有两点:

  客厅的装修风格以现代简奢风格为定位,而且空间宽敞和高旷,两侧都设有窗户,因而采光效果非常好!

  客厅的电视背景墙设在两个窗户之间,选用了仿大理石纹理的岩板从地面直到吊顶,两侧浅啡色的长城板点缀,搭配咖啡色的皮艺沙发,整体效果豪华而大气。

  地面通铺浅灰色的仿大理石瓷砖,与吊顶的大灯池形成鲜明对比,加上一个大吊灯,氛围感满满。

  如今房子入伙,地面的红地毯,墙面贴的红色吉祥语和图案,还有气球和红丝带,外墙挂着红灯笼和挥春等等,无论是外观还是室内,房子都充满着喜庆的氛围。

  特别声明:以上内容(如有图片或视频亦包括在内)为自媒体平台“网易号”用户上传并发布,本平台仅提供信息存储服务。

  Notice: The content above (including the pictures and videos if any) is uploaded and posted by a user of NetEase Hao, which is a social media platform and only provides information storage services.

  后代追忆志愿军“冷枪英雄”邹习祥:他用206颗子弹击杀203个敌人,因出色表现曾受金成日接见

  69+26+12+0失误!NBA历史首人!西部最强黑马诞生,你们要冲冠了!

  宋美龄晚年拒绝回忆过往,却反复念叨:如果我姐姐庆龄还活着的线万吨大豆烂港!巴西赌中国离不开它,却忘了中国早握3张王牌

  3-0!拜仁开季13战全胜+平米兰33年前神迹 凯恩连续10场破门终结

  TTS新传论文带读:“晒offer”会带来报应(怎么还有人研究这个....

联系地址:‌广东省广州市天河区新塘游艇会工业园59号

联系电话:020-2737-2223

E-mail:5124785@qq.com

服务热线:137-35221084

扫一扫,关注我们

Copyright © 2025-2028 游艇会有限公司 版权所有 非商用版本

粤ICP备16457434